La Masia
TÚ puedes ser el privilegiado en estrenar este nuevo hogar de rehabilitación (en proceso inicial).
El proyecto constructivo es un concepto de
masía adaptada a instalaciones modernas actuales; que respeta el estilo rústico exterior en su entorno natural y combina un interior cuidado y modernizado hasta el último detalle. Nos aporta grandes sensaciones de paz, calma y tranquilidad, precisamente lo que necesitas para vivir... pero
vivir bien.
Las
paredes de piedra originales que se conservan se fusionan armónicamente con los cálidos acabados modernos, manteniendo así su personalidad y tradición. Cada uno de sus rincones te aportan la calidez y el confort que necesitas. Un hogar completamente equipado, con grandes espacios diáfanos que aportan luminosidad y con grandes aberturas exteriores para que disfrutes del sitio en el que te encuentras.
Su privilegiado entorno es su esencia; un jardín totalmente integrado dentro del marco natural que lo rodea, con piscina, próximo al río Muga y de otros lugares así como parques naturales. La vista que tiene desde su ubicación, es simplemente magnífica.
Si quisiéramos definir la palabra
perfección, sería esta masía. Desde hace unos meses el valor que damos a nuestro hogar ha aumentado significativamente y encontrar un lugar de vida como este es excepcional.
Ponemos en tus manos la oportunidad de hacer realidad tu sueño.
¡Ven y te acompañamos!
Entrega prevista marzo 2023.
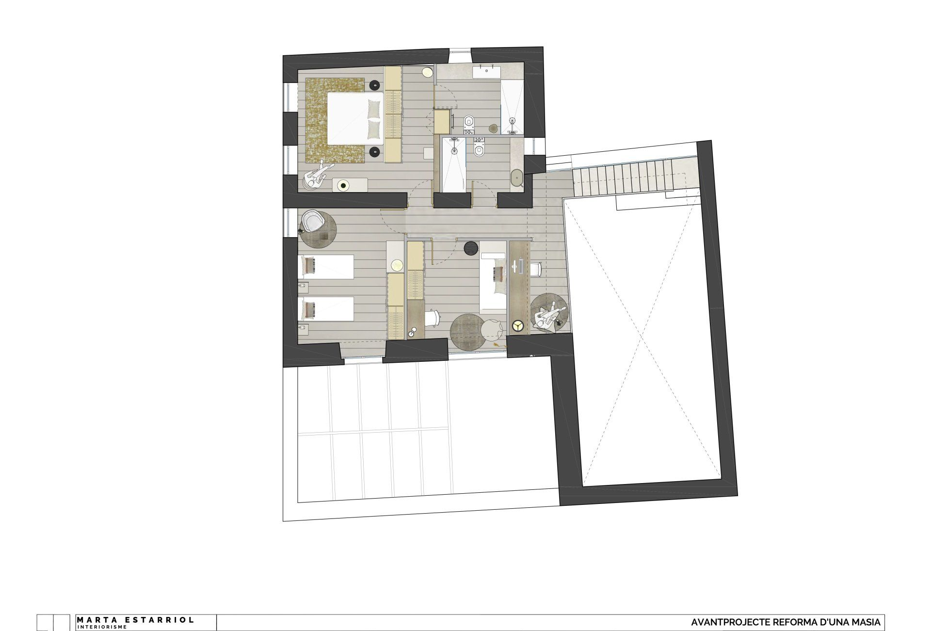
La decoración
En Naturland nos gustan las cosas bien hechas, por eso te proponemos tu casa ya con el proyecto de decoración incluido. De esta manera puedes hacerte una idea de su distribución, espacios y acabados. El proyecto está hecho por la interiorista Marta Estarriol , que siempre consigue la creación de espacios amplios, agradables, familiares y prácticos, para el día a día de una familia. Y con ese toque diferencial que hará que esta casa, La Masia, sea única y especial.
Opción 1: Parcela de 636m2
Desde 570.000€
Opción 2: Parcela de 990m2
Birthday Sparks
Desde 650.000€
Ubicación
Pont de Molins (Girona, SPAIN)
Su privilegiado entorno es su esencia; un jardín totalmente integrado dentro del marco natural que lo rodea. Se encuentra en el encantador pueblo de Pont de Molins, concretamente en el barrio de Molins, próximo al río Muga y de otros lugares así como parques naturales. La vista que tiene desde su ubicación, es simplemente magnífica.






















